相关题目
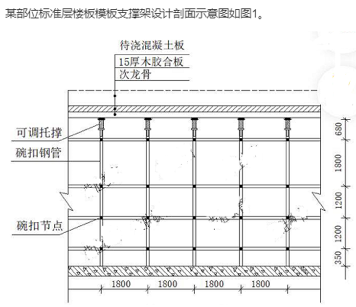
179.(2020年真题)某工程项目部根据当地政府要求进行新冠疫情后复工,按照住建部《房屋市政工程复工复产指南》(建办质(2020)8号)规定,制定了《项目疫情防控措施),其中规定有:(1)施工现场采取封闭式管理。严格施工区等”四区”分离,并设置隔离区和符合标准的隔离室:(2)根据工程规模和务工人员数量等因素,合理配备疫情防控物资;(3)现场办公场所、会议室、宿舍应保持通风,每天至少通风3次,并定期对上述重点场所进行消毒。项目部制定的《模板施工方案》中规定有:(1)模板选用15mm厚木胶合板,木枋格栅、围檩:(2)水平模板支撑采用碗扣式钢管脚手架,顶部设置可调托撑:(3)碗扣式脚手架钢管材料为Q235级,高度超过4m,模板支撑架安全等级按1级要求设计:(4)模板及其支架的设计中考虑了下列各项荷载:1)模板及其支架自重(G1)2)新浇筑混凝土自重(G2)3)钢筋自重(G3)4)新浇筑混凝土对模板侧面的压力(G4)5)施工人员及施工设备产生的荷载(Q1)6)浇筑和振捣混凝土时产生的荷载(Q2)7)泵送混凝土或不均匀堆载等附加水平荷载(Q3)8)风荷载(Q4)进行各项模板设计时,参与模板及支架承载力计算的荷载项见表1。
问题:1、《项目疫情防控措施》规定的”四区”中除施工区外还有哪些施工现场主要防疫物资有哪些需要消毒的重点场所还有哪些2、作为混凝土浇筑模板的材料种类都有哪些(如木材)3、写出表1中其他模板与支架承载力计算内容项目的参与荷载项。(如:支架水平杆及节点承载力:G1、G2、G3、Q1)4、指出图1中模板支撑架剖面图中的错误之处。
178.(2020年真题)招标文件中内容”投标人为本省一级资质证书的企业,投标保证金500.00万”,投标有效期从3月1日到4月15日。招标人对投标人提出的疑问,以书面形式回复对应的投标人。5月17日与中标人以1.7亿的中标价签订合同。发包人负责采购的装配式混凝土构件,提前一个月运抵合同约定的施工现场,监理会同施工验收合格。为了节约场地,承包人将构件集中堆放,由于堆放层数过多,导致下层部分构件出现裂缝。两个月后,发包人在承包人准备安装此构件时知悉此事。发包人要求施工方检验并赔偿损失,施工方以材料早到场为由,拒绝赔偿。施工单位没有隐蔽验收直接施工,监理要求验收。静压力桩,”先深后浅,先大后小,先长后短,先密后疏”。使用抱箍式方法接桩,接头高出地面0.8m。存在部分二类桩。问题:1、招投标过程中的不妥之处2、施工方拒绝赔偿的做法是否合理并说明理由。施工方可获得赔偿几个月的材料保管费3、叠合板钢筋隐蔽验收检验项目材料质量控制还有哪些环节4、施工顺序是否正确静力桩接头不妥之处桩基分几类二类桩的特点
177.(2020年真题)某新建住宅群体工程,包含10栋装配式高层住宅,5栋现浇框架小高层公寓,1栋社区活动中心及地下车库,总建筑面积31.5万m3,开发商通过邀请招标确定甲公司为总承包施工单位。开工前,项目部综合工程设计、合同条件、现场场地分区移交、陆续开工等因素编制本工程施工组织总设计,其中施工进度总计划在项目经理领导下编制,编制过程中,项目经理发现该计划编制说明中仅有编制的依据,未体现计划编制应考虑的其他要素,要求编制人员补充。社区活动中心开工后,由项目技术负责人组织。专业工程师根据施工进度总计划编制社区活动中心施工进度计划,内部评审中项目经理提出C、G、J工作由于特殊工艺共同租赁一台施工机具,在工作B、E按计划完成的前提下,考虑该机具租赁费用较高,尽量连续施工,要求对进度计划进行调整。经调整,最终形成既满足工期要求又经济可行的进度计划。社区活动中心调整后的部分方案计划如图2。
图2社区活动中心施工进度计划(部分)公司对项目部进行月度生产检查时发现,因连续小雨影响,D工作实际进度较计划进度滞后2天,要求项目部在分析原因的基础上制定进度事后控制措施。本工程完成全部结构施工内容后,在主体结构验收前,项目部制定了结构实体检验专项方案,委托具有相应资质的检测单位在监理单位见证下对涉及混凝土结构安全的有代表性的部位进行钢筋保护层厚度等检测,检测项目全部合格。问题:1、指出背景资料中施工进度计划编制中的不妥之处。施工进度总计划编制说明还包含哪些内容2、列出图2调整后有变化的逻辑关系(以工作节点表示如:①→②或②→③。计算调整后的总工期,列出关键线路(以工作名称表示如:A-→D)。3、按照施工进度事后控制要求,社区活动中心应采取的措施有哪些4、主体结构混凝土子分部包含哪些分项工程结构实体检验还应包含哪些检测项目
176.(2020年真题)某建筑地下2层,地上18层。框架结构。地下建筑面积0.4万m2,地上建筑面积2.1万m2。某施工单位中标后,由赵佑项目经理组织施工,施工至5层时,公司安全部叶军带队对项目进行了定期安全检查。检查过程依据标准JGJ59的相关内容进行,项目安全总监也全程参加,检测结果如表5-1。
公司安全部门]在年初的安全检查规划中按照相关要求明确了对项目安全检查的主要形式,包括定期安全检查,开工,复工安全检查,季节性安全检查等。确保项目施工过程中全覆盖,进入夏季后,公司项目管理部对该项目工人宿舍和食堂进行了检查。个别宿舍内床铺均为2层,住有18人,设置有生活用品专用柜,窗户为封闭式窗户,防止他人进入,通道宽度为0.8米,食堂办理了卫生许可证,3名炊事人员均有健康证,上岗符合个人卫生相关规定。检查后项目管理部对工人宿舍的不足提出了整改要求,并限期达标。工程竣工后,根据合同要求相关部门对该工程进行绿色建筑评价,评价指标中”生活便利”该分值低,施工单位将评分项”出行无障碍”等4项指标进行了逐一分析以便得到改善,评价分值如表5-2
问题:1、写出表5-1中A-F所对应内容(如A:*万m2),施工安全评定结论分几个等级,评价依据有哪些2、建筑工程施工安全检查还有哪些形式3、指出工人宿舍管理的不妥之处并改正。在炊事员上岗期间,从个人卫生角度还有哪些具体管理4、列式计算该工程绿色建筑总得分Q,该建筑属于哪个等级,还有哪些等级生活便利评分还有什么指标
175.某钢筋混凝土框架结构标准厂房建筑,高2层。无地下室,框架柱柱距7.6m。通过公开招标程序,某施工单位与建设单位签订的承包合同部分内容如下:工程合同总价2100万元,工程价款采用调值公式动态结算,建设单位在开工前向承包商支付合同价的15%为预付备料款。主要材料及构配件金额占合同总额的65%,竣工前全部结清。窝工综合补偿2000元/天。事件一:施工单位开挖土方时,因雨季下雨导致现场停工3天;在后续施工中,施工单位挖断了一处在建设单位提供的地下管线图中未标明的煤气管道,因抢修导致现场停工7天。为此,施工单位通过项目监理机构向建设单位提出工期延期10天和抢修费用补偿2万元及相应的窝工费用补偿的请求。事件二:结构设计按最小配筋率配筋,设计中有采用HPB235级φ12mm钢筋,由于当地市场该钢筋被淘汰。施工单位征得监理单位和建设单位同意后,按等强度折算后,用HRB335级φ12mm的钢筋进行代换,保证整体受力不变,并按此组织实施。事件三:二层梁板施工阶段天气晴好,气温16~27℃。梁板模板安装并拼接整齐、严密并验收完毕,进行钢筋的安装,且钢筋绑扎经验收符合规范要求。在混凝土浇筑前,用水准仪抄平,保证每一构件底模表面在同一个平面上,无凹凸不平问题,开始浇筑混凝土,并现场制作混凝土试件。浇筑完毕20h覆盖并浇水养护。后从标准养护室取出一组试件送检试压,其强度达到设计强度的80%,施工单位认为已超过设计强度75%,向监理提出拆除底模与架体支架的申请。事件四:该项目的保温砌块砌筑工程目标成本为305210.50元,实际成本为333560.40元,比目标成本超支了28349.90元,施工单位运用成本分析的基本方法对保温砌块砌筑工程施工成本进行分析:采用因素分析法,分析砌筑量、单价、损耗率等因素的变动对实际成本的影响程度,有关对比数据见下表。
【问题1】列式计算该工程预付备料款和起扣点各是多少万元?【问题2】指出事件一中挖断煤气管道事故的责任方,并说明理由。项目监理机构批准的工程延期和费用补偿分别为多少?【问题3】指出事件二中的不妥之处,并分别说明理由。【问题4】指出事件三中的不妥之处,并分别说明理由。【问题5】用因素分析法分析各因素对成本增加的具体影响。
174.工程由某总承包单位施工,基坑支护由专业分包单位承担,基坑支护施工前,专业分包单位编制了基坑支护专项施工方案,分包单位技术负责人审批签字后报总承包单位备案并直接上报监理单位审查,总监理工程师审核通过。随后分包单位组织了3名符合相关专业要求的专家及参建各方相关人员召开论证会,形成论证意见:”方案采用土钉喷护体系基本可行,需完善基坑监测方案,修改完善后通过”。分包单位按论证意见进行修改后拟按此方案实施,但被建设单位技术负责人以不符合相关规定为由要求整改。事件三:主体结构过程中,总承包单位按照《建筑施工安全检查标准》JGJ59-2011的要求对室外扣件式钢管脚手架安全进行检查,重点检查保证项目,并形成书面检查记录。【问题1】本项目基坑支护专项施工方案编制到专家论证的过程有何不妥?并说明正确做法。基坑监测方案应该检测哪些项目?【问题2】临建施工及使用方案中,在节地与施工用地保护方面可以提出哪些技术要点(至少列出3项)?【问题3】事件三中,按照《建筑施工安全检查标准》基坑工程检查评分表的要求,针对室外扣件式钢管脚手架工程,总承包单位应检查的保证项目有哪些(至少列出四项)?
173.某高校新建教学楼工程……施工过程中,发生了如下事件:事件一:在竣工验收时,建设单位要求对已隐蔽的地下管沟工程重新挖开进行复验,施工单位认为施工过程中已按要求经监理工程师验收合格,故拒绝再次挖开检查。经总监理工程师调解,停工2d后施工单位同意复验,复验结果满足设计及规范要求。施工单位上报停工2d、复验后重新恢复造成工期延误6d的两份工期索赔。事件二:因学校开学在即,建设单位要求施工单位在完成室内装饰装修工程后立即进行室内环境质量验收,并邀请了具有相应检测资质的机构到现场进行检测,施工单位对此做法提出异议。事件三:工程验收前,相关单位对一间240㎡的公共教室选取4个监测点,进行了室内环境污染物浓度的检测,其中两个主要指标的检测数据如下:
事件四:工程完工后进行室内环境污染物浓度检测结果不达标,整改后再次检测达到相关要求。【问题1】事件一中,施工单位不同意再次挖开检查的做法是否合理?说明理由。并分别判断两份工期索赔是否成立。【问题2】事件二中,施工单位提出异议是否合理?并说明理由。根据《民用建筑工程室内环境污染控制规范》,室内环境污染物浓度检测应包括哪些检测项目?【问题3】事件三中,该房间监测点的选区数量是否合理?说明理由。该房间两个主要指标的报告监测值为多少?分别判断该两项检测指标是否合格?【问题4】事件四中,室内环境污染物浓度再次检测时,应如何取样?
172.某新建商用群体建设项目,地下二层,地上八层,现浇钢筋混凝土框架结构,桩筏基础,建筑面积88000㎡。某施工单位中标后组建项目部进场施工,在项目现场搭设临时办公室、各类加工车间、库房、食堂和宿舍等临时设施;并根据场地实际情况,在现场临时设施区域内设置了环形消防通道、消火栓、消防供水池等消防设施。施工单位在每月例行的安全生产与文明施工巡查中,对照《建筑施工安全检查标准》(JGJ59-2011)中”文明施工检查评分表”的保证项目逐一进行检查;经统计,现场生产区临时设施总面积超过了1200㎡,检查组认为现场临时设施区域内消防设施配备不齐全,要求项目部整改。【问题1】按照”文明施工检查评分表”的保证项目检查时,除现场办公和住宿之外,检查的保证项目还应有哪些?针对本项目生产区临时设施总面积情况,在生产区临时设施区域内还应增设哪些消防器材或设施?【问题2】针对本项目模板及支撑架专项施工方案中的不妥之处,写出正确做法。【问题3】需要在施工组织设计中制定安全技术措施的高处作业项还有哪些?
171.某高校新建一栋办公楼和一栋实验楼,均为现浇钢筋混凝土框架结构。办公楼地下1层、地上11层,建筑檐高48m;实验楼6层,建筑檐高22m。建设单位与某施工总承包单位签订了施工总承包合同。合同约定:①电梯安装工程由建设单位指定分包;②保温工程保修期限为10年。施工过程中,发生了下列事件。事件1:总承包单位上报的施工组织设计中,办公楼采用1台塔式起重机;在7层楼面设置有自制卸料平台;外架采用悬挑脚手架,从地上2层开始分三次到顶。实验楼采用1台物料提升机;外架采用落地式钢管脚手架。监理工程师按照《危险性较大的分部分项工程安全管理办法》(建质[2009]87号)的规定,要求总承包单位单独编制与之相关的专项施工方案并上报。事件2:项目专职安全员在安全”三违”巡视检查时,发现人工拆除钢筋混凝土内支撑施工的安全措施不到位,有违章作业现象,要求立即停止拆除作业。事件3:结构施工阶段,施工单位相关部门对项目安全进行检査,发现外脚手架存在安全隐患,责令项目部立即整改。事件4:大厅后张预应力混凝土梁浇筑完成25天后,生产经理凭经验判定混凝土强度已达到设计要求,随即安排作业人员拆除了梁底模板并准备进行预应力张拉。在拆除过程中,上部钢管意外坠落击中下部施工人员,造成1名工人死亡。【问题1】事件1中,总承包单位必须单独编制哪些专项施工方案?【问题2】事件二中,除违章作业外,针对操作行为检查的”三违”巡查还应包括哪些内容?混凝土内支撑还可以采用哪几类拆除方法?【问题3】项目部应在哪些阶段进行脚手架检查和验收?【问题4】预应力混凝土梁底模拆除工作有哪些不妥之处?并说明理由。本次安全事故属于哪种安全事故?
170.背景资料:某开发商拟建一城市综合体项目,预计总投资十五亿元。发包方式采用施工总承包,施工单位承担部分垫资,按月度实际完成工作量的75%支付工程款,工程质量为合格,保修金为3%,合同总工期为32个月。最终确定有关费用如下:分部分项工程费82000.00万元,措施费20500.00万元,其他项目费12800.00万元,暂列金额8200.00万元,规费2470.00万元,税金3750.00万元。双方依据《建设工程施工合同(示范文本》GF-2017-0201签订了工程施工总承包合同。但中标后建设单位要求施工单位降低部分分项的综合单价。事件二:1.工程主体完工3个月后,总包单位为配合开发商自行发包的燃气等专业工程施工,脚手架留置比计划延长2个月拆除。为此要求开发商支付2个月脚手架租赁费68.00万元。2.总包单位要求开发商按照银行同期同类贷款利率,支付垫资利息1142.00万元。事件三:施工合同中允许总承包单位自行合法分包,A单位将物业配套楼整体分包给B单位,公共区域园林绿化分包给C单位(该单位未在施工现场设立项目管理机构,委托劳务队伍进行施工)、自行施工的8栋住宅楼的主体结构工程劳务(含钢筋、混凝士主材与模架等周转材料)分包给D单位,上述单位均具备相应施工资质。地方建设行政主管部门在例行检查时提出不符合《建筑工程施工转包违法分包等违法行为认定查处管理办法》(建市(2014)118号)相关规定要求整改。事件四:建设单位提供的材料运抵现场后,项目监理机构要求施工单位及时送检,但施工单位称:施工合同专用条款并未对此作出约定,因此,建设单位提供的材料,施工单位没有送检的义务,若一定要施工单位送检,则由建设单位支付材料检测费用。【问题1】计算本工程签约合同价(单位万元,保留2位小数)。施工单位的综合单价能否降低,这体现了工程量清单计价的哪个特点?【问题2】总包单位提出的索赔是否成立?并说明理由。【问题3】根据《建筑工程施工转包违法分包等违法行为认定查处管理办法》(建市(2014)118号)上述分包行为中哪些属于违法行为?并说明相应理由?【问题4】指出事件四中施工单位说法正确和错误之处,分别说明理由。
