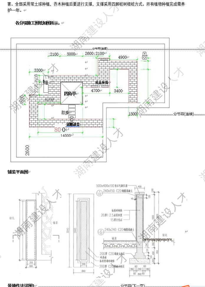
1、【63】、(案例题)【背景资料】某党校占地面积46hm²,其中建筑占地面积6.8hm²。以”保留、共享、隔离”为出发点,保留场地原有的历史遗迹和丰富的自然植被资源,将校园景观资源与周边城市河道、周边山体资源相共享,且对周边不利于校园景观视线的城市风貌进行隔离。整个校园在总体景观布局上分为”文化生活交流区、会堂广场核心区、生活学习互动区、运动休闲放松区、山体遗址保留区”,形成”一心、两轴、五区、多庭院、数节点”的空间脉络。在会堂广场核心区有一湖面,湖面水系与城市河道相连通,结合景观亭、水景置石、跌水、生态护坡、环湖栈道、湖底水下森林打造生态、自然、休憩、观赏的自然湖体。结合海绵城市的设计手法,将下凹绿地、雨水花园、植草沟融合到湖面一侧的大草坪中,缓解校园内涝的压力,体现生态建设理念。在生态学习交流区的教学楼庭院中,以一庭院一主景的方式,布置了植物主题园,分别是”木樨园、玉兰园、紫荆园、古榕园、樱花园、梅园、翠竹园”。请根据背景资料完成相应小题选项,其中单选题四选一(ABCD选项),多选题五选二或三或四(ABCDE选项);不选、多选、少选、错选均不得分。12、(单选题)关于学校绿地设计的错误说法是( )
答案解析
相关题目
1、56


1、(单选题)对于实例中的景墙的描述,不正确的是( )。
1、【55】(案例题)【背景资料】某公园内混凝土结构花架,如图所示,土壤为三类土,花架顶梁长6.2m,花架柱、梁、檩条以1:3水泥砂浆找平,外饰真石漆,坐凳板宽0.3m,厚0.05m。其中平整场地为建筑外墙向外2m范围。
请根据背景资料完成相应小题选项,其中单选题四选一(ABCD选项),多选题五选二或三或四(ABCDE选项);不选、多选、少选、错选均不得分。14、(单选题)将水泥和石碴按比例协作并加水拌和制成水泥石碴浆的是( )。
1、【55】(案例题)【背景资料】某公园内混凝土结构花架,如图所示,土壤为三类土,花架顶梁长6.2m,花架柱、梁、檩条以1:3水泥砂浆找平,外饰真石漆,坐凳板宽0.3m,厚0.05m。其中平整场地为建筑外墙向外2m范围。
请根据背景资料完成相应小题选项,其中单选题四选一(ABCD选项),多选题五选二或三或四(ABCDE选项);不选、多选、少选、错选均不得分。13、(单选题)将一般木材经过人工添加化学防腐剂后,使之具有防腐蚀、防潮、防自蚁防真菌的特性的是( )。
1、【55】(案例题)【背景资料】某公园内混凝土结构花架,如图所示,土壤为三类土,花架顶梁长6.2m,花架柱、梁、檩条以1:3水泥砂浆找平,外饰真石漆,坐凳板宽0.3m,厚0.05m。其中平整场地为建筑外墙向外2m范围。
请根据背景资料完成相应小题选项,其中单选题四选一(ABCD选项),多选题五选二或三或四(ABCDE选项);不选、多选、少选、错选均不得分。12、(单选题)坍落度是测定混凝土( )的最普遍的方法
1、【55】(案例题)【背景资料】某公园内混凝土结构花架,如图所示,土壤为三类土,花架顶梁长6.2m,花架柱、梁、檩条以1:3水泥砂浆找平,外饰真石漆,坐凳板宽0.3m,厚0.05m。其中平整场地为建筑外墙向外2m范围。
请根据背景资料完成相应小题选项,其中单选题四选一(ABCD选项),多选题五选二或三或四(ABCDE选项);不选、多选、少选、错选均不得分。11、(单选题)下列有关花架的说法,正确的是( )。
1、【55】(案例题)【背景资料】某公园内混凝土结构花架,如图所示,土壤为三类土,花架顶梁长6.2m,花架柱、梁、檩条以1:3水泥砂浆找平,外饰真石漆,坐凳板宽0.3m,厚0.05m。其中平整场地为建筑外墙向外2m范围。
请根据背景资料完成相应小题选项,其中单选题四选一(ABCD选项),多选题五选二或三或四(ABCDE选项);不选、多选、少选、错选均不得分。10、(单选题)公共座椅是人们在公共空间中接触最多的一类环境小品,公共座椅中人体工程学的设计直接影响到使用者的舒适感,较为舒适的座椅高( )m;座面倾角();座面宽()m。
1、【55】(案例题)【背景资料】某公园内混凝土结构花架,如图所示,土壤为三类土,花架顶梁长6.2m,花架柱、梁、檩条以1:3水泥砂浆找平,外饰真石漆,坐凳板宽0.3m,厚0.05m。其中平整场地为建筑外墙向外2m范围。
请根据背景资料完成相应小题选项,其中单选题四选一(ABCD选项),多选题五选二或三或四(ABCDE选项);不选、多选、少选、错选均不得分。9、(单选题)小游园中的花架高度一般控制在( )m。
1、【55】(案例题)【背景资料】某公园内混凝土结构花架,如图所示,土壤为三类土,花架顶梁长6.2m,花架柱、梁、檩条以1:3水泥砂浆找平,外饰真石漆,坐凳板宽0.3m,厚0.05m。其中平整场地为建筑外墙向外2m范围。
请根据背景资料完成相应小题选项,其中单选题四选一(ABCD选项),多选题五选二或三或四(ABCDE选项);不选、多选、少选、错选均不得分。8、(单选题)硅酸盐水泥和普通硅酸盐水泥配制的混凝土,受冻前不得低于设计强度标准值的( )%。
1、【55】(案例题)【背景资料】某公园内混凝土结构花架,如图所示,土壤为三类土,花架顶梁长6.2m,花架柱、梁、檩条以1:3水泥砂浆找平,外饰真石漆,坐凳板宽0.3m,厚0.05m。其中平整场地为建筑外墙向外2m范围。
请根据背景资料完成相应小题选项,其中单选题四选一(ABCD选项),多选题五选二或三或四(ABCDE选项);不选、多选、少选、错选均不得分。7、(单选题)模板拆除后,混凝土体表面出现麻面。振捣时间不足,混凝土体积内空气为充分排出,造成模板与混凝土基础面有气泡,拆模后气泡消失出现麻面。因此,振捣时,应掌握好振捣时间,充分振捣,以混凝土表面( )为准。
1、【55】(案例题)【背景资料】某公园内混凝土结构花架,如图所示,土壤为三类土,花架顶梁长6.2m,花架柱、梁、檩条以1:3水泥砂浆找平,外饰真石漆,坐凳板宽0.3m,厚0.05m。其中平整场地为建筑外墙向外2m范围。
请根据背景资料完成相应小题选项,其中单选题四选一(ABCD选项),多选题五选二或三或四(ABCDE选项);不选、多选、少选、错选均不得分。6、(单选题)混凝土的抗压强度是通过实验得出的,我国采用边长为( )mm的立方体作为混凝土抗压强度的标准尺寸试件。
