相关题目
91.某水利枢纽工程包括节制闸和船闸工程,工程所在地区每年5-9月份为汛期。项目于2014年9月开工,计划2017年1月底完工。根据设计要求,节制闸闸墩、船闸侧墙和底板采用C25、F100、W4混凝土。问题:背景资料中C25、F100、W4分别表示混凝土的哪些指标?其中数值25、100、4的含义分别是什么?
90.某水库枢纽工程有主坝、副坝、溢洪道、电站及灌溉引水隧洞等建筑物组成,水库总库容5.84亿m3,电站装机容量6.0MW,主坝为粘土心墙土石坝最大坝高90.3米,灌溉引水洞引水流量45m3/s,溢洪道控制段共5孔,每孔净宽15米。问题:指出本水库枢纽工程的等别、电站主要建筑物和临时建筑物的级别,以及本工程施工项目负责人应具有的建造师级别。
89.某水库工程施工单位在面板混凝土施工前,提供了面板混凝配合比,见下表所示。问题:计算事件2混凝土施工配合比表中的水胶比A值(保留小数点后两位)和砂率B值(用%表示,保留小数点后两位)?
88.某水利枢纽由主坝、副坝、溢洪道、电站及灌溉引水隧洞等建筑物组成,水库总库容5.84*108m3,电站装机容量6.0MW,主坝为黏土心墙土石坝,最大坝高90.3米。问:说明本水库枢纽工程的等别、主要建筑物和临时建筑物的级别。
87.施工单位承担某水闸工程施工。事件2:基坑初期排水过程中,发生围堰边坡坍塌事故,施工单位通过调整排水流量,避免事故再次发生。问:发生围堰边坡坍塌事故的主要原因是什么?
86.某引水枢纽工程主要由重力坝和节制闸组成,该枢纽工程在施工期间发生如下事件:事件三:施工单位为加强施工安全生产管理,现场规范使用“三宝”,并加强对“四口”的防护。问题:事件三中提到的“三宝”和“四口”各指什么?说明网等施工生产使用的“三宝”需满足哪些条件?
85.某水库除险加固工程加固内容主要包括:均质土坝坝体灌浆,护坡修整,溢洪道拆除重建等,工程建设过程中发生下列事件:事件三:2018年汛前,该合同工程基本完工,由于当年汛期水库防汛形势险峻,为确保水库安全度汛,根据度汛方案,建设单位组织参建单位对土坝和溢洪道进行险情巡查并制定了土坝和溢洪道工程险情巡查及应对措施预案,部分内容如表5所示。表5土坝和溢洪道工程险情巡查及应对措施预案
问题:根据本工程具体情况,指出表5中A、B、C、D、E分别代表的险情种类。
84.某水利枢纽由大坝、溢洪道、电站及灌溉引水隧洞等建筑物组成。工程施工过程中发生如下事件:事件二:某天夜间施工时,一名工人不慎从距离地面16.0m高的脚手架上坠地身亡。问题:简要说明什么是高处作业,指出事件2中发生事故的高处作业的级别和种类。
83.某水利枢纽由大坝、溢洪道、电站及灌溉引水隧洞等建筑物组成。工程施工过程中发生如下事件:事件二:输水洞开挖采用爆破法施工,施工分甲、乙两组从输水洞两端相向进行当两个开挖工作面相距25m,乙组爆破时,甲组在进行出渣作业:当两个开挖工作面相距10m,甲组爆破时,导致乙组正在作业的3名工人死亡。问题:指出事件三中施工方法的不妥之处,并说明正确做法。
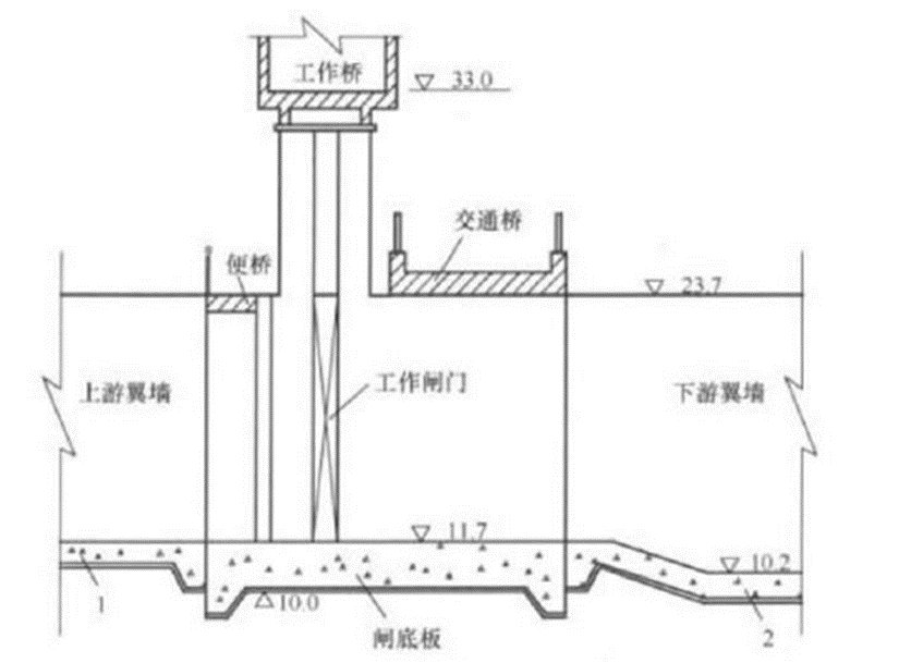
82.某平原区拦河闸工程,设计流量850m3/s,校核流量1020m3/s,闸室结构如下图所示:
问题:指出图中建筑物1和2的名称。
