相关题目
单选题
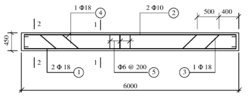
140、某梁的截面尺寸为200mmx450mm,保护层厚度为25mm,箍筋为HRB335级Ф6@200,则箍筋的外包尺寸为( )mm。
单选题
139、如图所示中,①号钢筋的下料长度为( )mm(梁的两端保护层取10mm,上下保护层取25mm)。
单选题
138、预应力筋张拉时,应填写( )。
单选题
137、在绘制钢筋布置图时,为了便于加工应( )以表示各种钢筋的形状和尺寸。
单选题
136、绘制钢筋布置图时,在正、立面图中,( )绘制。
单选题
135、在绘制钢筋布置图时,为了便于加工,应画出每种钢筋的式样简图以( )。
单选题
134、梁的混凝土保护层厚度是指( )。
单选题
133、HPB335级钢筋末端应做( )弯钩,其弯弧内直径为D≧2.5d,弯钩的弯后平直部分长度≧3倍的钢筋直径。
单选题
132、如图所示的箍筋,其中⑤号箍筋的下料长度为( )mm(保护层厚度为25mm)。
单选题
131、某件的计算标注尺寸为L=5950mm,直径为18mm,两端做180°的弯钩,则该钢筋的下料长度为( )mm。
